Die Bekrönung des Grabmals
sowie die Figur der Iustitia

 

 

I. Photographien

 

 

1931Wappen,Tod,Stadtmuseum

 

Zustand um 1931, vor der Restaurierung

 (Stadtmuseum Kassel)

 

Man erkennt die ursprüngliche Form der Rückwand,  die Flam­men und Knochen an den Toten­schädeln, die Helmzier des land­gräf­lichen Wappens, sowie (auf dem rechten Bild) Teile der Fackel­stangen. Das rechte Bild und die beiden folgenden bil­de­ten die wichtigste Grund­lage für die Rekon­struktion der Stan­gen und der Schrift­anord­nung auf den Tafeln; ein kurzes Text­stück auf der Ta­fel über For­titudo ist jedoch auf kei­nem Bil­d sichtbar: Hierfür wur­den Ge­­samtansich­ten des Grab­mals heran­gezogen, die in starker Ver­­größerung Hin­­weise für die An­ordnung der Buch­staben gaben.

 

 

img568a

 

Zustand um 1931, vor der Restaurierung

 ( Bildarchiv Foto Marburg )

 

img565a

 

Zustand um 1931

( Bildarchiv Foto Marburg )

 

 

Mittelgiebel1932

 

Zustand um 1931

(Stadtmuseum Kassel)

 

 

Ansicht1

IustitiaLoewe 2

 

Zustand 1952

(Hess. Baumanagement Kassel)

 

Die gesamte Bekrönung ist durch herabfallende Trümmer schwer beschädigt worden, die Fackel­stangen fehlen, ebenso die Waage der Iustitia samt dem rechten Unterarm; das Schwert ist vermutlich durch die Witterungseinflüsse verrostet. Die Urne und der linke Obelisk befinden sich beschädigt bei anderen Fragmenten am Fuße des Grabmals. Auf dem linken Bild erkennt man allerdings auch, daß die heute fehlenden Teile des Rankenwerks (Helmdecke) in der großen Wappen­kartusche noch vorhanden waren; sie sind erst bei der Versetzung des Grabmals zerstört worden. Das Schadensbild, das die (bei der Restaurierung 2004 noch unbekannten) Aufnahmen zeigen, deutet darauf hin, dass die Schrifttafeln und die Stangen aus Gründen der Statik lediglich aus Holz bestanden, welches täuschend echt in Bronzemanier bemalt war und trotz der Ummauerung des Grabmals im Feuersturm 1943 verbrannte – ebenso wie auch die mittlere Holzverschalung verbrannte, welche die statisch begründete Öffnung in der Rückwand verschloss.  

 

 

Ansichtrechts

 

Zustand 1952

(Hess. Baumanagement Kassel)

 

 

Ansichtvonli

 

Blick auf eine rekonstruierte Fackelstange, 2004

 

RIMG2004

 

Rekonstruierte Schrifttafel, 2004

 

RIMG1879

 

Rekonstruierte Schrifttafel, 2004

Bei der Rekonstruktion wurden Tafeln und Stangen entsprechend der historischen Optik in Bronze ausgeführt. Die Schrift ist mit Blattgold auf die Tafeln aufgetragen und mit schwarzen Konturstrichen versehen, welche einen Schattenwurf nachahmen – die Buchstaben sind also nicht plastisch heraus­gearbeitet, was in der Bau­kommission im August 2004 äußerst umstritten war. Tatsächlich steht aber auf den historischen Photographien der erkennbare scheinbare Schattenwurf im Widerspruch zum tatsäch­lichen Licht­einfall, so daß die Schrift nur aufgemalt gewesen sein kann. Eine Erklärung für diese Aus­füh­rung dürfte das Bestreben sein, trotz der großen Anbringungshöhe der Tafeln bei den gegebenen Licht­verhältnissen die bestmögliche Lesbarkeit und (scheinbar) Plastizität der Schrift zu erreichen.

 

 

Sockel2

 

Sockel einer rekonstruierten Fackelstange,
2004

 

Der horizontale Streifen aus schwarzem Mar­mor, unter­halb der Voluten, ist in Anleh­nung an die An­sätze von 1956 nur aufgeputzt, die Spitz­hiebe aufgemalt; in den Maßen muß­ten teil­­weise Kom­­promisse zwischen dem ur­sprüng­­li­chen Zu­­stand und der Sub­stanz von 1956 gefunden werden.

 

 

Lorbeerkranz

 

Rekonstruierter Lorbeerkranz, vor Anbringung der Schrifttafel, 2004

 

Der Lorbeerkranz bei Iustitia konnte an Hand der Photographien detailgetreu re­kon­struiert werden. Gesamtansichten des Grabmals lassen zwar er­ken­nen, daß das Gegenstück bei Forti­tu­do davon ab­wich, doch fehlen hinreichende Vor­lagen; daher wur­den beide Kränze identisch ge­stal­tet.

RIMG1886

 

Iustitia, Waage und ergänzter rechter Arm, 2004

RIMG1745

 

Iustitia mit ergänztem Schwert, 2004

 

 

 

II. Ausführungszeichnungen

 

 

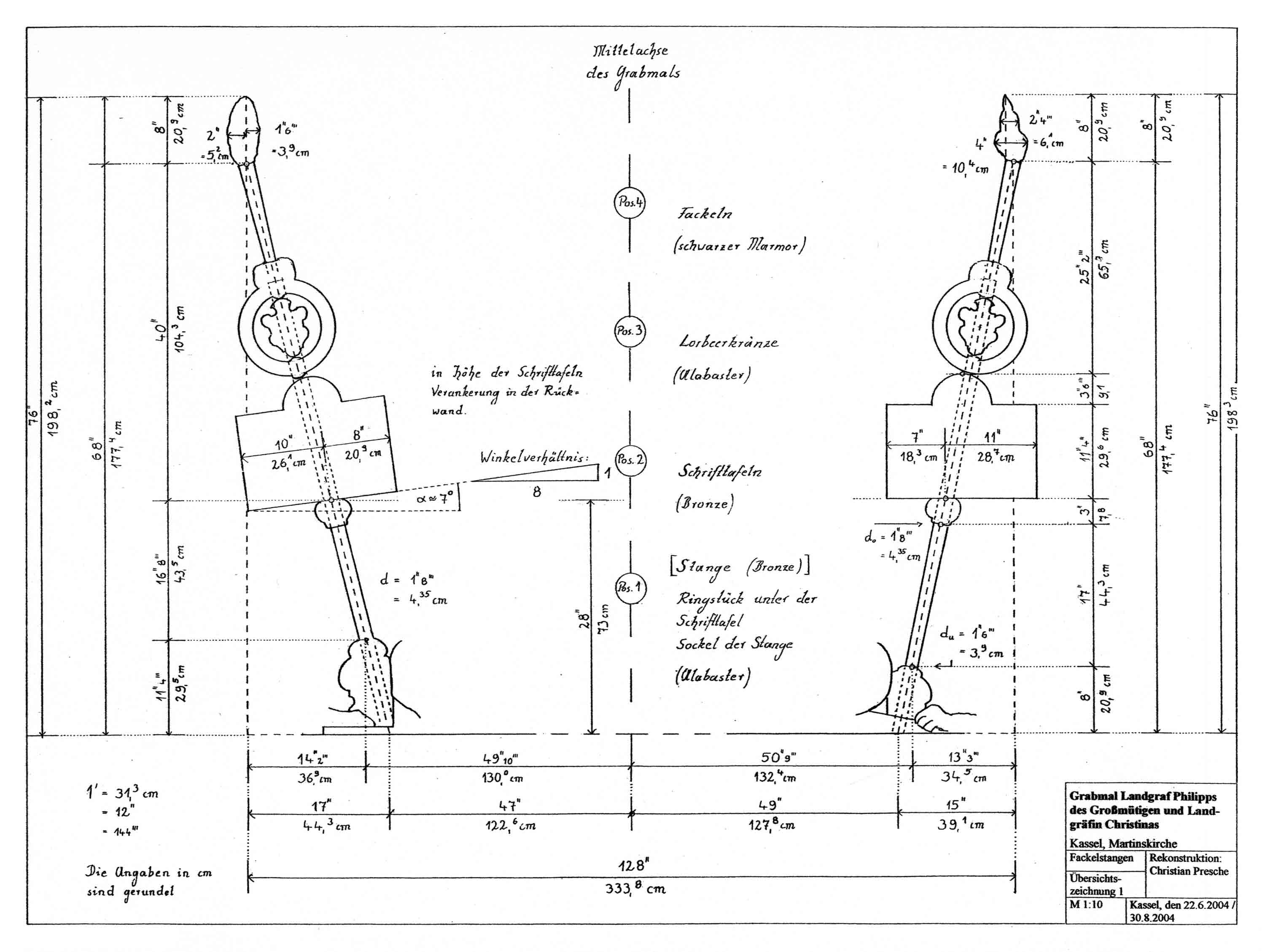
Fackel­stangen

 

img439b

 

Gesamtsituation

img440b

 

Aufsicht beider Stangen und Neigung der Stange auf der Seite Christinas

 

img449b

 

Fackeln

img444b

 

Lorbeerkränze

img445b

 

Lorbeerkränze

 

img441b

 

Sockel und Kopfstück auf der Seite Philipps

img442b

 

Sockel und Kopfstück auf der Seite Christinas

 

img443b

 

Schrifttafel

img448b

 

Aufschrift

 

img447b

 

Aufschrift

 

Iustitia

img436b

 

Gesamtsituation

img437b

 

Waage

 

img438b

 

Richtschwert

 

Rückwand

img450b

 

Rekonstruktion

 

img452b

 

Ausführungsskizze

 

img453b

 

Ausführungsskizze

 

 

Urne,17

 

Die wiederaufgefundene Urne mit den Ergänzungen, 2006

 

Die Urne war 1956 nicht wieder auf der Rückwand über dem Tod aufgestellt worden und galt als ver­schollen. Im Januar 2006 konnte sie durch Zufall jedoch im Nebenraum der jüngeren Gruft zwischen mehreren anderen Fragmenten der Kirche identifiziert werden, als der Raum für restauratorische Untersuchungen vollständig ausgeleuchtet war. Im Juli 2006 bot sich schließlich die Möglichkeit, sie nach über 50 Jahren wieder am Grabmal anzubringen: Dieses war damals wegen Bauarbeiten in der Kirche (Heizung) zum Schutz vor Verschmutzung eingerüstet und verhüllt; vor Abbau des Gerüstes, als die Planen schon wieder abgenommen waren, erfolgte unter schwierigen Bedingungen die Montage der inzwischen restaurierten Urne.

 

 

Zur Übersicht