Das Hintergrundbild der Startseite ist eine Ansicht des Coursaals (Grünen Empfangsaals) im Roten Palais in Kassel.
Die
Grundlage der nachfolgenden Rundgänge durch die Räume des Kurfürstlichen
Schlosses bilden im wesentlichen die ausführliche Baumonographie von R. Bidlingmaier, das Denkmälerinventar
A. Holtmeyers von 1923 und der
Amtliche Führer von 1930
(vgl. das Literaturverzeichnis).
Das ehem. kurfürstliche Residenzpalais in Kassel

Die Nordseite des Friedrichsplatzes, um
1922;
von links nach rechts:
Weißes Palais, Rotes Palais, Museum Fridericianum, ehem. Hofverwaltungsgebäude, St. Elisabeth,
Denkmal Landgraf Friedrichs II.
(Holtmeyer,
Tafel 39,1)
Nach dem Brand des alten Landgrafenschlosses
1811 und der Wiederherstellung Kurhessens 1813/14 wurden vom kurfürstlichen Hof
als Ersatz verschiedene Gebäude genutzt. Kurprinz Wilhelm erhielt von den
Landständen (das hessische Parlament) deren Palais am Friedrichsplatz
/ Ecke Königstraße überlassen. Ab 1815 ließ Wilhelm es durch den Architekten
Johann Conrad Bromeis umbauen und erweitern.

Das Weiße Palais, 1910;
ganz links das ehem. kurhessische
Staatsministerium, daneben das ehem. Palais Reichenbach
(Holtmeyer,
Tafel 264)
Nach der Regierungsübernahme Wilhelms (II.)
1821 wurde der von seinem Vater begonnene Neubau eines großen Residenzschlosses
eingestellt und statt dessen das kurprinzliche Palais
durch Bromeis um weitere Repräsentationsräume
erweitert: das Rote Palais.

Das Rote Palais, 1910
(Holtmeyer,
Tafel 266)
Die Fassade bestand aus rotem Sandstein,
wobei sich einzelne Architekturteile aus hellem gelblichem Sandstein abhoben
(Portikus, Gurt- und Sohlbankgesims, Pilaster am Mittelteil, Architrav und
Kranzgesims, Fensterverdachungen, Archivolten am
Mittelteil, Säulen der Venezianischen Fenster, Pilasterkapitelle
der seitlichen Fenster). Das alte Palais erhielt einen Anstrich in
weiß-grünlich-grauer Farbe („Weißes Palais“).
Davon ausgehend wurde die gesamte Nordseite
des Friedrichsplatzes einheitlich gestaltet: die Elisabethkirche als Gegenstück
zum Weißen Palais im gleichen Anstrich, das neue Hofverwaltungsgebäude als
Gegenstück zum Roten Palais in rotem Anstrich mit gelben Architekturteilen.
Das Museum Fridericianum
in der Mitte der Front hob sich davon in einem hellen Grau ab.
Zum Gesamtkomplex des Residenzpalais gehörte außerdem das Palais Reichenbach bzw. Palais Hanau oder (offiziell ab 1843) Kleines Palais, sowie das angrenzende Haus Untere Karlsstraße 1.

Ansicht des Friedrichsplatzes, 1789
(Aquarell von J. W. Kobold; Heidelbach, Tafel 24)

Blick über den Friedrichsplatz, 1829
(Aquarell von P. L. Feidel;
Holtmeyer, Tafel 39,2)

Stadtplan um 1842 (Ausschnitt);
an die Gebäude des Residenzpalais grenzt
zum Königsplatz hin das kurhessische Staatsministerium an

Das Residenzpalais um 1850
(kolorierter Stich von Löwer; Heidelbach, Tafel 34a)

Rotes Palais, Aufriß
der Hauptfassade, 1869;
die Fensterläden wurden 1871 entfernt
(H. von Dehn-Rothfelser;
Bidlingmaier, S. 77)

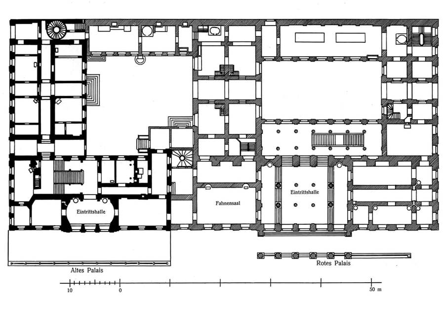
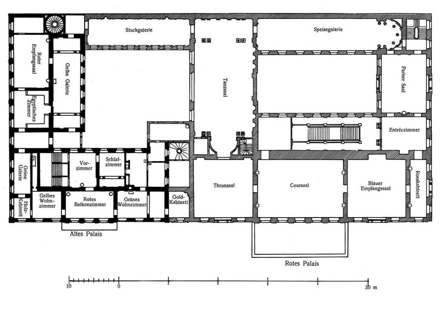
Weißes Palais und Rotes Palais: Grundriß des Erdgeschosses
(Holtmeyer,
Tafel 262)

Weißes und Rotes Palais: Grundriß des 1. Obergeschosses
(Holtmeyer,
Tafel 263)

Rotes Palais, Hof, 1910
(Holtmeyer, Tafel 268,2)

Weißes Palais, Hof, 1910
(Holtmeyer,
Tafel 268,1)
Besonders aufwendig war die
Innenausstattung: Sie zählte zu den besten Beispielen des Empirestils auf
deutschem Boden und zeichnete sich auch durch besonders wirkungsvolle Farbkombinationen
aus. Bromeis kamen dabei seine Erfahrungen als
Bauinspektor am Kasseler Hof des napoleonischen Königreichs Westphalen zugute,
als er den französischen Empirestil aus erster Hand kennengelernt hatte. Mit
seinem Bauherren, dem Kurprinzen bzw. Kurfürsten Wilhelm II. erwuchs eine
kongeniale Zusammenarbeit, indem Wilhelm intensiv Anteil am Entwurfsprozeß
nahm, sich stets mehrere Entwürfe zur Auswahl vorlegen ließ und selbst weitere
Ideen und Wünsche einbrachte; besonders die Raumgestaltungen sind daher bis ins
Detail auch weitgehend von seinen Vorstellungen geprägt.
Mit Ausnahme weniger Teile (z.B.
Kronleuchter und Seidentapeten) war die gesamte Ausstattung das Werk
kurhessischer Künstler und Handwerker.
Rundgang
durch die Zeremonialräume des Roten Palais: Vestibül,
Haupttreppenhaus, Empfangsräume und Thronsaal
Rundgang
durch das Weiße Palais, Stuckgalerie, Tanzsaal, Speisegalerie und Pariser Saal
Geschichte
des Palais Reichenbach
1881 wurden Kleines Palais (Palais
Reichenbach) und Untere Karlsstraße 1 verkauft, nachdem die inneren Verbindungstüren
zwischen den Gebäuden bereits 1870 zugemauert worden waren.

Stadtplan von 1877 (Ausschnitt):
Das Kleine Palais ist inzwischen aus dem
Gesamtkomplex des Residenzpalais herausgelöst.
In der Nacht vom 8. auf den 9. September
1941 gerieten Palais Reichenbach und Rotes Palais nach einem Bombenangriff in
Brand, und trotz aller Bemühungen konnte der Einsturz der Obergeschoßdecken im
Roten Palais nicht verhindert werden. Die beschädigten Wandgestaltungen wurden durch ein Notdach geschützt,
welches in weiten Teilen noch bei Kriegsende vorhanden war. Das Weiße Palais
brannte beim Großangriff am Abend des 22. Oktobers 1943 vollständig aus.
Die Reste des Weißen Palais wurden bis 1950
schrittweise abgebrochen, am Roten Palais führte man bis 1953 zunächst noch
Sicherungsarbeiten durch. Die hessische Landesregierung und die Kasseler
Stadtverwaltung hatten jedoch kein Interesse an einem Erhalt des Gebäudes. 1954
begannen die sukzessiven Abbrucharbeiten. Als das Finanzministerium das Areal
1958 hinter dem Rücken des Kultusministeriums an den Hertie-Konzern verkaufte,
existierte bereits seit 2 Jahren ein fertiger Entwurf für ein Kaufhaus an
dieser Stelle. Ab 1961 entstand hier das „bilka“ (=
Billig-Kaufhaus).
Am alten Standort ist heute nur noch der
wiederaufgebaute Portikus vorhanden. Vom Palais Reichenbach blieben zunächst
der Seitenflügel (unter Verlust des 2. Obergeschosses) und das halbkreisförmige
Haupttreppenhaus erhalten und wurden um 1950 in den Neubau eines
Geschäftshauses einbezogen. Bis zu ihrem Abbruch im Sommer 2006 bildeten sie
die letzten größeren Reste des ehem. Kurfürstlichen Residenzpalais.
Das kostbare Mobiliar des Roten Palais
konnte beim Brand 1941 teilweise gerettet werden, das Mobiliar des Weißen
Palais wurde anschließend vollständig ausgelagert. Diese qualitativ
hochwertigen Zeugnisse hessischer Handwerkskunst sind zu geringen Teilen im
Weißensteinflügel des Wilhelmshöher Schlosses aufgestellt. Das Meiste ruht –
der Öffentlichkeit verborgen – in Depots, andere Stücke sind an den
Bundespräsidenten und an das Neue Palais in Postdam
ausgeliehen, der Thronteppich mit dem kurhessischen Wappen befindet sich im Schloß Fasanerie in Fulda.
Reste des vollständig erhaltenen, dann aber
demontierten Rampengitters vom Weißen Palais werden sich im Magazin des
Hessischen Landesmuseums Kassel aufbewahrt, und an einem Haus am
Niederkaufunger Kirchplatz soll die Haustür mündlicher Überlieferung gemäß vom Residenzpalais stammen.
Literatur und Bildnachweis:
Bildlingmaier, Rolf: Das Residenzpalais in Kassel (Studien
zum Kulturerbe in Hessen 1), Regensburg 2000.
Heidelbach, Paul:
Kassel. Ein Jahrtausend hessischer Stadtkultur, hg.
von Karl Kaltwasser, Kassel und Basel 1957.
Holtmeyer,
Alois: Die Bau- und Kunstdenkmäler im Regierungsbezirk Cassel, Bd. VI, Kreis Cassel-Stadt,
5 Bde., Marburg 1923.
Huth,
Hans: Das Residenzpalais in Kassel. Amtlicher Führer, Berlin 1930.